Domturm (Rottenburg)

Datenbank Bauforschung/Restaurierung

Datenbank Bauforschung/Restaurierung

ehem. Amtsgefängnis

ID: 121316109016  /  Datum: 29.06.2009
Datenbestand: Bauforschung
Als PDF herunterladen:
Alle Inhalte dieser Seite: /

Objektdaten

Straße: Marstallstraße
Hausnummer: 18
Postleitzahl: 76227
Stadt-Teilort: Karlsruhe-Durlach

Regierungsbezirk: Karlsruhe
Kreis: Karlsruhe (Stadtkreis)
Wohnplatzschlüssel: 8212000015
Flurstücknummer: 45997
Historischer Straßenname: keiner
Historische Gebäudenummer: keine
Lage des Wohnplatzes: Lage des Wohnplatzes

Kartenansicht (OpenStreetMaps)

Durch Ihre Cookie-Auswahl haben Sie die Kartenansicht deaktiviert, die eigentlich hier angezeigt werden würde. Wenn Sie die Kartenansicht nutzen möchten, passen Sie bitte Ihre Cookie-Einstellungen unter Impressum & Datenschutzerklärung an.

Objektbeziehungen

keine

Umbauzuordnung

keine

Weitere Objekte an diesem Wohnplatz

Villa (76227 Karlsruhe-Durlach, Jean-Ritzert-Str. 1)

Bauphasen

Kurzbeschreibung der Bau-/Objektgeschichte bzw. Baugestaltungs- und Restaurierungsphasen:

Das Gefängnis wurde im feuchten (ehemaligen Sumpfgelände) „Weyerhof“-Gelände außerhalb der Stadtmauern von Durlach von Jakob Hochstetter 1843-46 errichtet. 1848/49 wurde das Gefängnis erweitert und das gesamte Gebäude um ein drittes Stockwerk ergänzt.
Der nach Vorbild von Hübschs Mustergefängins-Entwürfen als U-förmige Dreiflügelanlage errichtete erste Gefängnisbau lag etwas südlich.
Wegen bedrohlicher Baufälligkeit musste das Bauwerk 1872 abgetragen werden. In Jahren 1872/73 wurde sein unter der Leitung des Karlsruher Bezirksbauinspektors Franz Serger errichtet. Dabei wurden Teile des 1843-46 bzw. 1846-48 von Jakob Hochstetter erbauten vorangegangenen Gefängnisgebäudes wieder verwendet. Die Erweiterung des Zellentraktes nach Westen erfolgte dann 1892/93. Der Gefängnisbau bildete mit seinen nördlichen Außenwänden zugleich die Flucht von Stadt- und Zwingermauer und ist unter Einbeziehung dieser Mauer errichtet worden. Das Gebäude von 1872-73 wurde auf den Mauerzügen der mittelalterlichen Stadtbefestigung von Durlach erstellt. Die Nordwand des Zellentraktes mit seiner Flurbreite stand auf den Substruktionen der Zwingermauer, während die Nordwand des nach Osten weisenden Gebäudeteils auf der ehem. Stadtmauer stand und die Mauer in dem im Erdgeschoss anstehenden aufgehenden Mauerwerk erhalten und in das Gebäude übernommen worden war. Ein Teil der Mauer stand als Vorlage vor der Ostfassade an der Nordostecke des Gebäudes. Serger wandelte den U-förmigen Baukörper des Hochstetterschen Gefängnisses zu einer T-Form um, was eine leichte Erweiterung durch einfaches Verlängern des Zellentraktes erlaubte. Für Sergers Bau wurden nicht nur die durch den Abbruch des Vorgängerbaus gewonnenen Baumaterialien, sondern die charakteristischen Architekturteile des ersten Gefängnisses (etwa das Portal, die Fenstergewände, Eckquaderungen, Gesimse etc.) wieder verwendet. Somit waren die Fassaden des Neubaus weitgehend mit denen des Hochstetterschen Vorgängerbaus identisch gewesen sein.
1990 Abbruch des Gefängnisses. Heute befindet sich an seinem ehemaligen Standort das Weiherhofcenter.


1. Bauphase:
(1843 - 1849)
1843-46 Errichtung des Vorgeängerbaus von Jakob Hochstetter. (a)
1848/49 Erweiterung und Aufstockung das Gefängnis. (a)
Betroffene Gebäudeteile:
keine
Bauwerkstyp:
  • Öffentliche Bauten/ herrschaftliche Einrichtungen
    • Gefängnis

2. Bauphase:
(1872 - 1873)
Errichtung des Gefängnisses unter der Leitung von Franz Serger. Das Gebäude wurde auf den Mauerzügen der mittelalterlichen Stadtbefestigung von Durlach erstellt, dabei wurden Teile des 1843-46 bzw. 1846-48 von Jakob Hochstetter erbauten vorangegangenen Gefängnisgebäudes wieder verwendet. (a)
Betroffene Gebäudeteile:
keine
Bauwerkstyp:
  • Öffentliche Bauten/ herrschaftliche Einrichtungen
    • Gefängnis

3. Bauphase:
(1892 - 1893)
Die Erweiterung des Zellentraktes nach Westen.(a)
Betroffene Gebäudeteile:
keine

4. Bauphase:
(1990)
1990 Abbruch des Gefängnisses.(a)
Betroffene Gebäudeteile:
keine

Besitzer:in

keine Angaben

Fotos

ehem. Amtsgefängnis, Ansicht von Osten, 1990,
Urheber: Neuenburg am Rhein, Bildmessung GmbH / ehem. Amtsgefängnis in 76227 Karlsruhe-Durlach (03.07.2009)
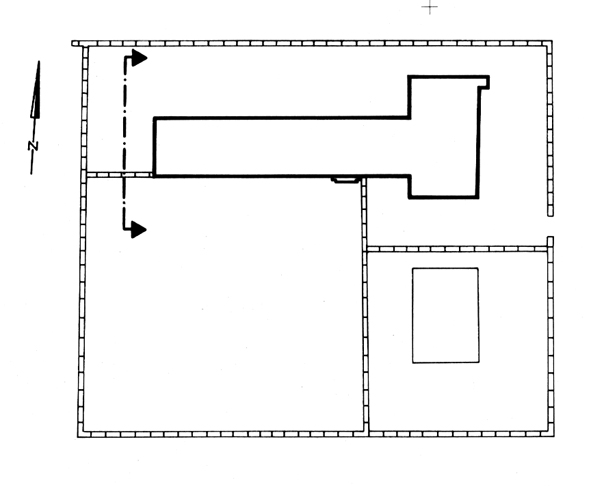
ehem. Amtsgefängnis, Lageplan,
Urheber: Neuenburg am Rhein, Bildmessung GmbH / ehem. Amtsgefängnis in 76227 Karlsruhe-Durlach (29.06.2009)

Zugeordnete Dokumentationen

  • Baudokumentation
  • Forschungsergebnisse zur bauhistorischen Einschätzung des ehemaligen Durlacher Amtsgefängnisses

Beschreibung

Umgebung, Lage:
Das Gefängnis wurde im feuchten Weyerhofgelände (Sumpfgebiet) außerhalb der Stadtmauern von Durlach errichtet.
Lagedetail:
  • Siedlung
    • Stadt
Bauwerkstyp:
  • Befestigungs- und Verteidigungsanlagen
    • Stadtmauer
  • Öffentliche Bauten/ herrschaftliche Einrichtungen
    • Gefängnis
Baukörper/Objektform (Kurzbeschreibung):
Der dreigeschossige Gefängnisbau wird von einer Umfassungsmauer umschlossen.
Innerer Aufbau/Grundriss/
Zonierung:
Der Grundriss des Gefängnisses ist T-förmig.
Vorgefundener Zustand (z.B. Schäden, Vorzustand):
Eine vollständige Bergung der Rahmung des südlichen Eingangs im Erdgeschoss wurde durch das Tiefbauamt der Stadt Karlsruhe vorgenommen:
darunter ein bewegliche Türblatt, eine Zellentür des Gefängnisses, die im Rechtshistorischen Museum aufbewahrt wird.
Das Gefängnis wurde auf Teilen der mittelalterlichen Stadtmauer errichtet.
Bestand/Ausstattung:
keine Angaben

Konstruktionen

Konstruktionsdetail:
  • Verwendete Materialien
    • Stein
  • Detail (Ausstattung)
    • Portikus
  • Steinbau Mauerwerk
    • Bruchstein
  • Dachform
    • Satteldach mit beidseitigem Vollwalm
Konstruktion/Material:
Das in rotem Buntsandsteinmauerwerk errichtete Gebäude wird durch markante Eckquaderungen vertikal und durch Gesimse und ein Konsolgesims am Dachansatz horizontal gegliedert. Ein flaches Walmdach deckt den Baukörper.
Zur Verdeutlichung des Bautypus wurden hoch liegenden kleinen Zellenfenster am Seitenbau und einer Hausteinfassade verbunden mit einer umschließenden Hausteinmauer als architektonische Stilmittel verwendet; das Gebäude sollte auf diese Weise, klar und deutlich, als Gefängnis definiert werden.

Quick-Response-Code

qrCode