Hohes Haus (Schwäbisch Hall)

Datenbank Bauforschung/Restaurierung

Datenbank Bauforschung/Restaurierung

Ausgedinghaus

ID: 199988284818  /  Datum: 15.05.2015
Datenbestand: Bauforschung
Als PDF herunterladen:
Alle Inhalte dieser Seite: /

Objektdaten

Straße: Heiligenberger Straße
Hausnummer: 129
Postleitzahl: 88682
Stadt-Teilort: Weildorf

Regierungsbezirk: Tübingen
Kreis: Bodenseekreis (Landkreis)
Wohnplatzschlüssel: 8435052045
Flurstücknummer: keine
Historischer Straßenname: keiner
Historische Gebäudenummer: keine
Lage des Wohnplatzes: Lage des Wohnplatzes

Kartenansicht (OpenStreetMaps)

Durch Ihre Cookie-Auswahl haben Sie die Kartenansicht deaktiviert, die eigentlich hier angezeigt werden würde. Wenn Sie die Kartenansicht nutzen möchten, passen Sie bitte Ihre Cookie-Einstellungen unter Impressum & Datenschutzerklärung an.

Objektbeziehungen

Ist Gebäudeteil von:
1. Gebäudeteil: Gasthaus Adler , Heiligenberger Straße 129

Besteht aus folgenden Gebäudeteilen:
keine Angabe

Umbauzuordnung

keine

Bauphasen

Kurzbeschreibung der Bau-/Objektgeschichte bzw. Baugestaltungs- und Restaurierungsphasen:

Das südlich an das Hauptgebäude des Gasthauses Adler direkt angebaute Ausgedinghaus wurde nach Ausweis der dendrochronologischen Datierung wahrscheinlich in den 1860er Jahren (d) errichtet. Leider konnten keine Bohrproben mit Waldkante entnommen werden, sodass sich das Baualter nicht eindeutig bestimmen ließ.
Älterer Baubestand hat sich in dem kleinen Kellerraum unter dem westlichen Gebäudeteil sowie in der westlichen Außenwand des Erdgeschosses erhalten. Abgesehen von einer jüngeren Erneuerung der Kellerdecke hat sich somit der Baubestand der 1860er Jahre mitsamt eines Großteiles der bauzeitlichen Ausstattung bis heute weitgehend unverändert erhalten.


1. Bauphase:
(1800 - 1860)
Älterer, vermutlich vor 1860 datierender Baubestand (gk), darunter der Keller unter der Nordwestecke des Gebäudes und die massiv aufgemauerte westliche Außenwand des Erdgeschosses.
Betroffene Gebäudeteile:
Betroffene Gebäudeteile
  • Erdgeschoss
  • Untergeschoss(e)
Lagedetail:
  • Siedlung
    • Dorf
Bauwerkstyp:
  • Ländl./ landwirtschaftl. Bauten/ städtische Nebengeb.
    • Ausgedinghaus
Konstruktionsdetail:
  • Dachform
    • Satteldach
  • Dachgerüst Grundsystem
    • Sparrendach, q. geb. mit liegendem Stuhl
  • Mischbau
    • Unterbau aus Stein (gestelzt)
  • Holzgerüstbau
    • Geschossgerüst
  • Verwendete Materialien
    • Stein
    • Ziegel

2. Bauphase:
(1860 - 1869)
Heutiges Ausgedinghaus entspricht einem weitestgehenden Neubau der 1860er Jahre. (d, gk)
Betroffene Gebäudeteile:
Betroffene Gebäudeteile
  • Erdgeschoss
  • Obergeschoss(e)
  • Dachgeschoss(e)
  • Ausstattung
Bauwerkstyp:
  • Ländl./ landwirtschaftl. Bauten/ städtische Nebengeb.
    • Ausgedinghaus

Besitzer:in

keine Angaben

Fotos

Abbildungsnachweis
Ausgedinghaus, Südgiebel  / Ausgedinghaus in 88682 Weildorf (25.09.2013 - S. Uhl)
Abbildungsnachweis
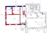
Baualtersplan, Grundriss EG (Bausubstanz 2. H. 19. Jh. - rot - hat sich im Erdgeschoss ebenso wie in allen anderen Geschossen noch weitgehend vollständig und ungestört erhalten. Älter könnte eventuell die in Quadern gemauerte Westwand - violett - sein) / Ausgedinghaus in 88682 Weildorf (27.11.2015 - S. Uhl)

Zugeordnete Dokumentationen

  • Bauhistorische Untersuchung mit Schadensaufnahme

Beschreibung

Umgebung, Lage:
Ausgedinghaus als Teil der mehrteiligen Hofanlage "Gasthaus Adler" am nördlichen Ortsrand von Weildorf; Gebäude ist giebelständig an den Südgiebel des Hauptgebäudes angebaut.
Lagedetail:
  • Siedlung
    • Dorf
Bauwerkstyp:
  • Ländl./ landwirtschaftl. Bauten/ städtische Nebengeb.
    • Ausgedinghaus
Baukörper/Objektform (Kurzbeschreibung):
Kleines, zweigeschossiges und verputztes Gebäude über gedrungenem, rechteckigen Grundriss mit zweigeschossigem Satteldach.
Innerer Aufbau/Grundriss/
Zonierung:
Nordseitiger, schmaler Querflur mit Treppe und Hauseingang, südlich im EG großer südöstlicher Eckraum, kleine Küche und kleines Bad, im Obergeschoss zwei große Kammern; Dachraum nicht ausgebaut.
Vorgefundener Zustand (z.B. Schäden, Vorzustand):
keine Angaben
Bestand/Ausstattung:
Gut erhaltene bauzeitliche Ausstattung mit Böden, Türen und Fenstern aus der 2. Hälfte des 19. Jahrhunderts.

Konstruktionen

Konstruktionsdetail:
  • Mischbau
    • Steinbau mit Gebäudeteilen aus Holz
    • Unterbau aus Stein (gestelzt)
  • Verwendete Materialien
    • Backstein
    • Stein
  • Dachform
    • Satteldach
  • Dachgerüst Grundsystem
    • Sparrendach, q. geb. mit liegendem Stuhl
  • Detail (Dach)
    • Dachüberstand
Konstruktion/Material:
Erdgeschoss und Obergeschoss sind von massiven Außenwänden umfangen, während die Innenwände aus verputztem Fachwerk bestehen. Den oberen Abschluss bildet ein zweigeschossiges Satteldach mit einer liegenden verzapften Stuhlkonstruktion.

Quick-Response-Code

qrCode