Wohn- und Geschäftshaus
ID:
251219399220
/
Datum:
16.03.2007
Datenbestand: Bauforschung
Datenbestand: Bauforschung
Objektdaten
| Straße: | Jöhlingerstraße |
| Hausnummer: | 51 |
| Postleitzahl: | 75045 |
| Stadt-Teilort: | Walzbachtal-Jöhlingen |
|
|
|
| Regierungsbezirk: | Karlsruhe |
| Kreis: | Karlsruhe (Landkreis) |
| Wohnplatzschlüssel: | 8215089002 |
| Flurstücknummer: | keine |
| Historischer Straßenname: | keiner |
| Historische Gebäudenummer: | keine |
| Lage des Wohnplatzes: |
|
Kartenansicht (OpenStreetMaps)
Durch Ihre Cookie-Auswahl haben Sie die Kartenansicht deaktiviert, die eigentlich hier angezeigt werden würde. Wenn Sie die Kartenansicht nutzen möchten, passen Sie bitte Ihre Cookie-Einstellungen unter Impressum & Datenschutzerklärung an.
Bauphasen
Kurzbeschreibung der Bau-/Objektgeschichte bzw. Baugestaltungs- und Restaurierungsphasen:
Das im Jahr 1554 errichtete Gebäude wurde 1712 und am Ende des 19. Jahrhunderts umgebaut. Dabei wurde die Ausstattung im 19. Jh. komplett erneuert und ein Ladenlokal für eine Metzgerei eingebaut.
In der Zeit um 1960 erfolgte eine tiefgreifende Innensanierung.
1. Bauphase:
(1554)
(1554)
Errichtung des Gebäudes (d).
Betroffene Gebäudeteile:
keine
Konstruktionsdetail:
- Holzgerüstbau
- Unterbaugerüst
- Dachgerüst Grundsystem
- Balkendach mit Rofen und stehendem Stuhl
2. Bauphase:
(1712)
(1712)
Bauliche Eingriffe sind archivalisch Dokumentiert (a).
Betroffene Gebäudeteile:
keine
3. Bauphase:
(1880 - 1900)
(1880 - 1900)
Umbau des Gebäudes. Es wurde ein Ladenlokal für eine Metzgerei eingebaut. Außerdem wurde die Ausstattung komplett erneuert (a).
Betroffene Gebäudeteile:
keine
4. Bauphase:
(1960 - 1970)
(1960 - 1970)
Das Gebäude wurde tiefgreifend im Innern saniert (a).
Betroffene Gebäudeteile:
keine
Zugeordnete Dokumentationen
- Erhaltungsuntersuchung
Beschreibung
Umgebung, Lage:
Das Gebäudes steht giebelseitig an der Hauptstraße in Jöhlingen.
Lagedetail:
- Siedlung
- Dorf
Bauwerkstyp:
- Ländl./ landwirtschaftl. Bauten/ städtische Nebengeb.
- Bauernhaus
Baukörper/Objektform (Kurzbeschreibung):
Es handelt sich um ein zweigeschossiges Fachwerkgebäude. Das Gebäude ist nicht unterkellert. Dem ehemals einhüftigen, zweigeschossige Satteldach wurde bei Umbauten eine Abwalmung angefügt.
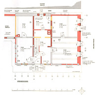
Innerer Aufbau/Grundriss/
Zonierung:
Zonierung:
Der Grundriss gliedert sich in drei Zonen. Der Zugang liegt in der Mittelzone. Um eine Flurfläche im südlichen Bereich gruppieren sich die Räume. Die vertikale Erschließung erfolgt über eine einläufige Treppe in der mittleren Zone.
Vorgefundener Zustand (z.B. Schäden, Vorzustand):
Das Sichtfachwerk an der Ost- und Nordfassade wurde in späterer Zeit verputzt.
Bestand/Ausstattung:
keine Angaben
Konstruktionen
Konstruktionsdetail:
- Dachgerüst Grundsystem
- Balkendach mit Rofen und stehendem Stuhl
- Holzgerüstbau
- Unterbaugerüst
- Wandfüllung/-verschalung/-verkleidung
- Backstein/Lehmziegel
- Dachform
- Satteldach
Konstruktion/Material:
Das Gebäude ist eine Fachwerkkonstruktion in stockwerkbauweise. Bei Umbauphasen wurden jedoch einzelne Fachwerkwände durch massives Mauerwerk ersetzt. Das verrußte Dachtragwerk besteht aus einem zweifach liegenden und einfach stehenden Stuhl.


