Haalstraße 5/7 (Schwäbisch Hall)

Datenbank Bauforschung/Restaurierung

Datenbank Bauforschung/Restaurierung

Hopfendarre

ID: 311213409259  /  Datum: 10.09.2007
Datenbestand: Bauforschung
Als PDF herunterladen:
Alle Inhalte dieser Seite: /

Objektdaten

Straße: Schlossstraße
Hausnummer: 14
Postleitzahl: 72555
Stadt-Teilort: Metzingen

Regierungsbezirk: Tübingen
Kreis: Reutlingen (Landkreis)
Wohnplatzschlüssel: 8415050005
Flurstücknummer: keine
Historischer Straßenname: keiner
Historische Gebäudenummer: keine
Lage des Wohnplatzes: Lage des Wohnplatzes

Kartenansicht (OpenStreetMaps)

Durch Ihre Cookie-Auswahl haben Sie die Kartenansicht deaktiviert, die eigentlich hier angezeigt werden würde. Wenn Sie die Kartenansicht nutzen möchten, passen Sie bitte Ihre Cookie-Einstellungen unter Impressum & Datenschutzerklärung an.

Objektbeziehungen

keine

Umbauzuordnung

keine

Weitere Objekte an diesem Wohnplatz

Offenhäuser Pfleghof (72555 Metzingen, Am Klosterhof 13)
Martinskirche, ev. Stadtkirche (72555 Metzingen, Bei der Martinskirche)
Wohnhaus, Friedrichstraße 23/1 (72544 Metzingen)
Eindach-Bauernhaus (72555 Metzingen, Gustav-Werner-Straße 21)
ehem. Badehaus, Hofstraße 1 (72555 Metzingen)
Wohnhaus, Hofstraße 1 (72555 Metzingen)
Wohn- und Geschäftshaus (72555 Metzingen, Metzgerstraße 5)
Rathaus II (72555 Metzingen, Nürtinger Straße 1)
Wohnhaus, Nürtinger Straße 7 (72555 Metzingen)
Schlössle (72555 Metzingen, Pfleghofstraße 41)
Fachwerkhaus (72555 Metzingen, Schlossstraße 26)
Wohn- und Geschäftshaus (72555 Metzingen, Schlossstraße 28)
Wohn-und Geschäftshaus, Stuttgarter Straße 19 (72555 Metzingen)
Altes Rathaus (72555 Metzingen, Stuttgarter Straße 2-4)
ehem. Wohnhaus (72555 Metzingen, Wilhelmstraße 54)

Bauphasen

Kurzbeschreibung der Bau-/Objektgeschichte bzw. Baugestaltungs- und Restaurierungsphasen:

unbekannt, nur Bauaufnahme vorhanden

Besitzer:in

keine Angaben

Fotos

Hopfendarre. Ansicht von Süden. 02.2003 / Hopfendarre in 72555 Metzingen
Hopfendarre. Grundriss Erdgeschoss. 02.2003. / Hopfendarre in 72555 Metzingen

Zugeordnete Dokumentationen

  • Bauaufnahme und Fotodokumentation.

Beschreibung

Umgebung, Lage:
Die ehemalige Hopfendarre liegt zurückversetzt auf dem Grundstück Schlossstraße 14. Das zugehörige Wohnhaus steht direkt an der Straße.
Lagedetail:
  • Siedlung
    • Stadt
Bauwerkstyp:
  • Ländl./ landwirtschaftl. Bauten/ städtische Nebengeb.
    • Lagergebäude
Baukörper/Objektform (Kurzbeschreibung):
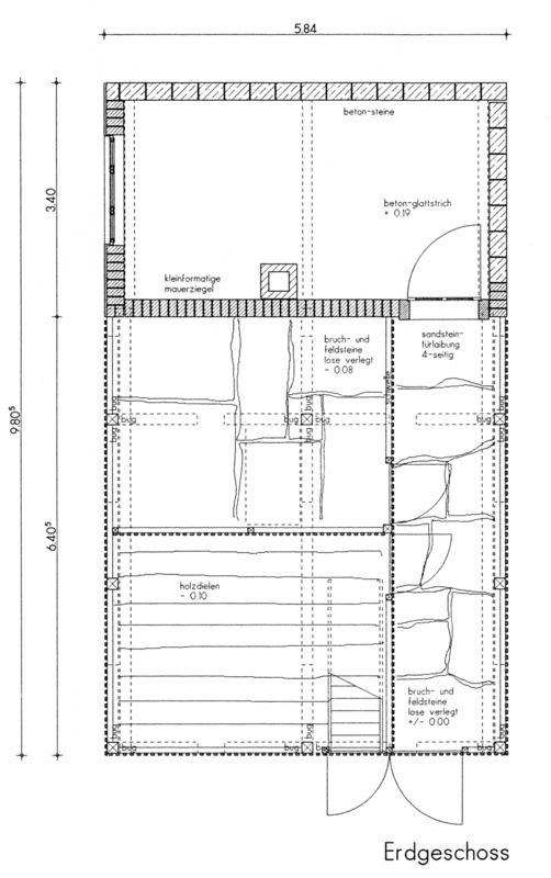
Der rechteckige sich in Ost-West-Richtung erstreckende Baukörper misst ca. 5,80m x 9,80m. Das zweigeschossige Gebäude schließt mit einem Satteldach ab, Firsthöhe ca. 8m.
Innerer Aufbau/Grundriss/
Zonierung:
Das Erdgeschoss in seinem heutigen Erscheinen dreischiffig und somit abweichend von der konstruktiven Teilung. Den beiden östlichen Schiffen ist gegen Norden ein flurartiger Gang vorgelagert, der zum Zugang des geschlossenen Bereichs des Erdgeschosses im westlichen Schiff führt.
Das Obergeschoss der Darre wird nur durch einen einzigen Ständer in der Raummitte gegliedert.
Der Dachstock ist einschiffig als offener Dachraum konzipiert.
Vorgefundener Zustand (z.B. Schäden, Vorzustand):
keine Angaben
Bestand/Ausstattung:
keine Angaben

Konstruktionen

Konstruktionsdetail:
  • Holzgerüstbau
    • Unterbaugerüst
  • Mischbau
    • Holzbau mit Gebäudeteil aus Stein
  • Dachform
    • Satteldach
  • Dachgerüst Grundsystem
    • Sparrendach, l. geb. mit Sparrenschwelle
Konstruktion/Material:
Der östliche Teil des Erdgeschosses ist in einer Ständerkonstruktion (drei Querbünde) erstellt, die durch Kopfbänder sowohl in Quer- als auch in Längsrichtung ausgesteift wird. Die Konstruktion wird nach außen durch ein vertikales Lattengerüst geschlossen.
Der westliche Teil des Gebäudes ist als Mauerwerksbau ausgeführt: die westliche und die nördliche Wand sind in Betonstein-Mauerwerk erstellt, die östliche und die südliche Wand sind in kleinformatigen Mauerziegeln.

Das Obergeschoss ist als reiner Holzgerüstbau ausgeführt, die Ausfachungen mit Bruchsteinen geschlossen. Nahezu jedes zweite Feld des Gerüsts wird durch einen großen Holzladen mit verstellbaren Lamellen eingenommen. Außen ist das Holzgerüst verputzt, innen sichtbar.

Der Dachstuhl ist als einfaches Sparrendach ausgeführt.

Quick-Response-Code

qrCode