ehem. Gerberhaus
Datenbestand: Bauforschung
Objektdaten
| Straße: | Lohgasse |
| Hausnummer: | 3 |
| Postleitzahl: | 69469 |
| Stadt-Teilort: | Weinheim |
|
|
|
| Regierungsbezirk: | Karlsruhe |
| Kreis: | Rhein-Neckar-Kreis (Landkreis) |
| Wohnplatzschlüssel: | 8226096023 |
| Flurstücknummer: | 240 |
| Historischer Straßenname: | keiner |
| Historische Gebäudenummer: | keine |
| Lage des Wohnplatzes: |
|
Kartenansicht (OpenStreetMaps)
Wohnhaus, Ehretstraße 7 (69469 Weinheim)
Wohnhaus, Gerbergasse 3 (69469 Weinheim)
Wohnhaus, Gerbergasse 7 (69469 Weinheim)
Löwenapotheke (69469 Weinheim, Hauptstraße 123)
Wohnhaus, Hauptstraße 128 (69469 Weinheim)
Wohnhaus, Judengasse 13 (69469 Weinheim)
Baukomplex, Judengasse 14 (69469 Weinheim)
Wohnhaus, Judengasse 7 (69469 Weinheim)
Wohnhaus, Judengasse 9 (69469 Weinheim)
Wohnhaus (69469 Weinheim, Marktplatz 10)
Wohnhaus, Marktplatz 11 (69469 Weinheim)
Wohnhaus (69469 Weinheim, Marktplatz 18)
Altes Rathaus, Marktplatz 1 (69469 Weinheim)
Wohnhaus, Marktplatz 6 (69469 Weinheim)
Wohnhaus, Marktplatz 8 (69469 Weinheim)
Wohnhaus, Müllheimer Talstraße 100 ( 6946 Weinheim)
Wohn- und Geschäftshaus (69469 Weinheim, Münzgasse 1)
Schloss Weinheim, Kellergeschoss (69469 Weinheim, Obertorstraße 9)
Wohnhaus, Stadtmühlgasse 15 (69469 Weinheim)
Bauphasen
Bei dem Gebäude handelt es sich um ein ehemaliges Speicher- und Werkstattgebäude eines Gerberbetriebes, das im 17./18. Jahrhundert errichtet.
Die Erschließung des 1. Obergeschosses sowie der längliche schmale Raum an der Nordfassade ebendort befinden sich in einem nachträglich angebauten Teil des Gebäudes. Das zweite Obergeschoss wurde eventuell zu einem späteren Zeitpunkt errichtet. Der Gesindegang wurde erst errichtet, als das Gebäude bereits als Wohnhaus genutzt wurde, wobei sich im 2. Obergeschoss die Schlafräume befanden. Der Dachstuhl und die Strebestützen wurden vermutlich im letzten Jahrhundert eingefügt. Dabei wurde die erste historische Balkenlage aufgenommen, die die Grundlage für ein neues Dachtragewerk bildete.
Die bestehenden Fenster sind größtenteils aus den 50er bzw. 60er Jahren des 20. Jahrhunderts.
(1650 - 1750)
- Gewerbe- und Industriebauten
- Werkstattgebäude
(1750 - 1850)
- Wohnbauten
- Wohnhaus
(1801 - 1899)
(1950 - 1969)
Zugeordnete Dokumentationen
- Bestandsaufnahme, Raumbuch
Beschreibung
- Siedlung
- Stadt
- Wohnbauten
- Wohnhaus
Zonierung:
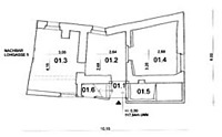
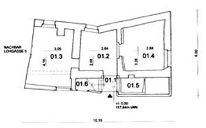
Das Gebäude ist dreizonig gegliedert und wird mittig von der Nordseite er erschlossen. Im Eingangsbereich befindet sich die Vertikalerschließung, die in einen angebauten Raum im 1. Obergeschoss führt. Dieser nimmt die gesamte Länge des Hauses ein. Das 2. Obergeschoss und das Dachgeschoss sind über eine Treppe im Nordosten des 1. Obergeschosses zu erreichen. Im 2. Obergeschoss befindet sich an der Nordfassade der sogenante „Gesindegang“, der in der mittleren Zone liegt. Das Dachgeschoss ist nicht unterteilt.
Im 1. Obergeschoss haben sich noch Dielenböden erhalten.
Konstruktionen
- Mischbau
- Obergeschoss(e) aus Holz
- Dachform
- Satteldach
- Dachgerüst Grundsystem
- Balkendach mit Rofen und stehendem Stuhl
- Verwendete Materialien
- Stein
- Ziegel
- Detail (Ausstattung)
- bemerkenswerte Treppen
- besondere Bodenbeläge
- Wandfüllung/-verschalung/-verkleidung
- Backstein/Lehmziegel
- Lehmwickel
Bei den Decken handelt es sich um Balkendecken. Der Bodenaufbau besteht aus Holzschalung zwischen den Tragbalken mit Lehm-, Sand- und Schlackeausfüllung. Im Bereich des Gesindeganges im 2. Obergeschoss wurden zwei Strebestützen zum Abfangen der Dachlast eingebaut. Der Dachstuhl ist ein stehender Pfettendachstuhl, der ein Satteldach trägt.


